WEBSITES
STUDIO WORK
GRAPHICS
ILLUSTRATION
About
Walden Jones
WEBSITES
STUDIO WORK
GRAPHICS
ILLUSTRATION
About

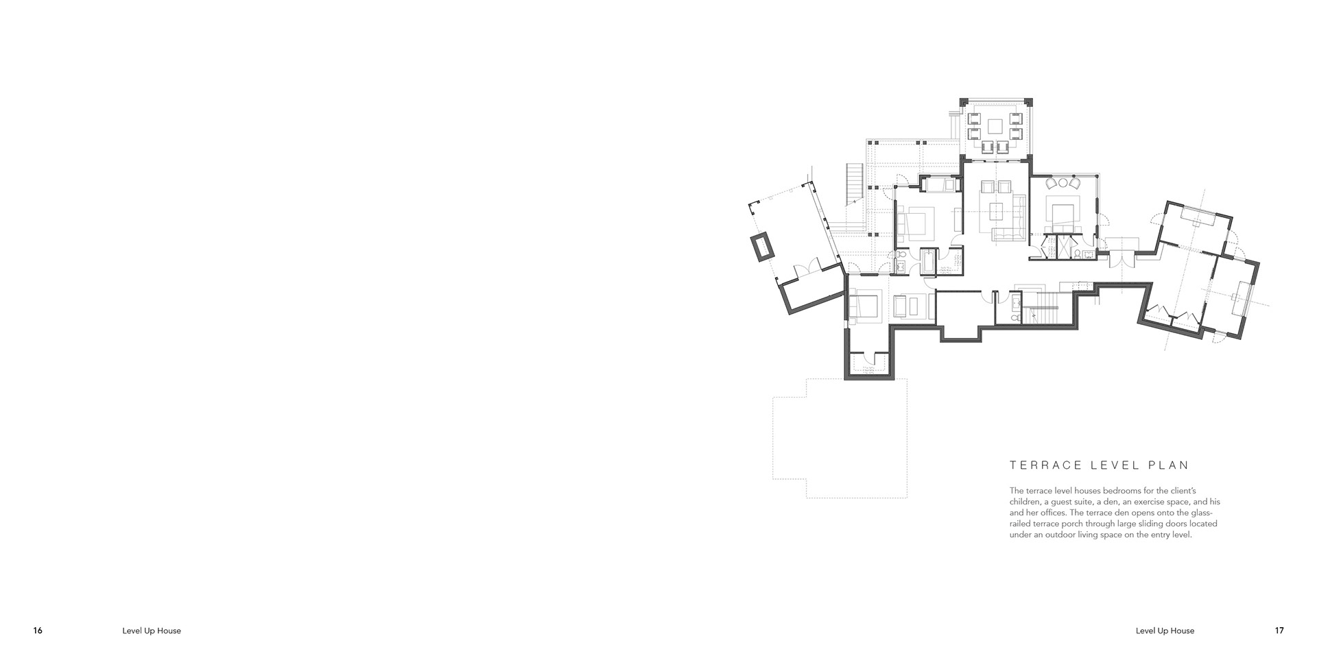
LEVEL UP HOUSE

↑Back to Top
Powered by Adobe Portfolio